采購單位:中海物業管理廣州有限公司
采購產品:檔案密集架
廣東振越智能家具有限公司—主營:密集架,智能密集架,電動密集架,檔案密集架,是一家專注檔案裝具設備生產廠家。
138-2629-3157
廣東振越智能家具有限公司
全國免費服務熱線:020-37431808
24小時服務熱線:138-2629-3157
聯系人:袁先生
QQ:1654736290
地址:廣州市白云區江高鎮江村古樓工區東巷20號
檔案密集架項目用戶為中海物業管理廣州有限公司。1995年08月28日成立,位于廣東省會,中國通往世界的南大門羊城廣州。
1、用戶需求:
客戶存儲資料過多,為此需要升級檔案管理,從而減輕辦公人員檔案管理的負擔,提高員工們的工作效率。在網上尋找檔案密集架廠家,看到振越官網。覺得很不錯,綜合實力很強。要求人員上門測量現尺寸并設計方案。
2、勘察現場:
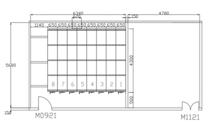
檔案室在三樓,通過現場測量,樓層的承重足夠, 唯一不足的是樓高只有2.2米?蛻粝M軌蜃畲蠡睦每臻g,擺放足夠多的檔案資料。本著合理保留工作空間的原則下,我司告訴用戶密集柜高度可以做到2米(五層)。且提交了如下平面圖設計稿:

3、方案提交及方案確定:
在場的用戶看到平面圖設計稿后,都紛紛點頭表示肯定!因檔案太多,急需要投放使用。我們告訴用戶我司擁有4條線一體成型機,生產效率是非常高的,并明確說明這批密集架只需要15天之內就可以完成所有的生產、安裝。用戶一聽就非常開心了,解決了他們的“燃眉之急”。
4、生產送貨:
簽約合同后,我司安排生產部門加快生產,售后部門加派人手搬運,安裝,調式,順利的完成了驗收,用戶對我們的全程服務稱贊不已。

業務員:李其
現場項目經理:熊工
設計人員:周工
項目驗收時間:2020年